Лого
Аренда и продажа коммерческой
недвижимости в Москве
A

Бизнес-центр Бейкер Плаза IV

Адрес: Москва, ул Бутырский Вал, 68/70, стр. 6

По запросу

Коммунальные платежи: Не включены

Есть вопросы?

Похожие предложения по вашему запросу

Информация о здании

Об объекте
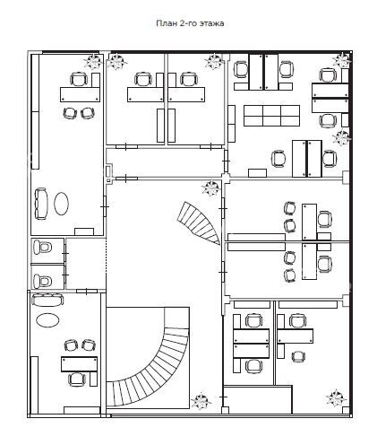
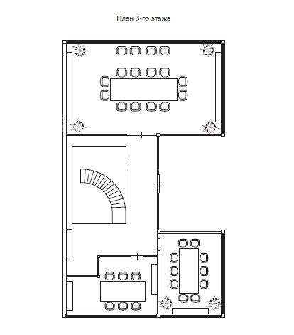
Современный комплекс Бейкер Плаза IV включает в себя 3 этажа.
В нем сдаются в аренду офисные помещения класса А, с отдельным входом, открытой террасой с пуфами для отдыха на свежем воздухе, также расположена итальянская мебель во всех помещениях, имеются 4 переговорных комнаты с размещением от 6 до 20 человек.
Эффективная планировка этажей позволяет адаптировать пространство под нужды бизнеса, а также размещать в помещениях больше рабочих мест, не жертвуя комфортом сотрудников.
Техническое оснащение
В Бейкер Плаза IV установлено современное техническое оснащение: бесперебойное электро- и водоснабжение, электрическая мощность 100Квт, централизованная система кондиционирования, приточно-вытяжная вентиляция, система видеонаблюдения, охранная и противопожарной сигнализация, круглосуточная охрана.
Инфраструктура
Тверской район отличается развитой инфраструктурой, где есть все необходимое для нужд жителей и бизнеса. Все важные социальные объекты находятся в шаговой доступности, что позволяет экономить время на перемещениях.
Метро и транспорт
Рядом с деловым центром Бейкер Плаза IV находится несколько станций метро: «Савеловская» в 9 минутах ходьбы. Около 13 минут потребуется, чтобы дойти до станции «Менделеевская». На метро можно без пересадок добраться в самые значимые точки столицы.
Неподалеку от комплекса расположены остановки наземного транспорта.
Развитая дорожная сеть позволяет добираться до бизнес-центра в любое время. В часы высокой загруженности дорог можно найти альтернативный маршрут или воспользоваться подземкой.

Отзыв эксперта
офиса в Бизнес-центр Бейкер Плаза IV в ЦАО это престижно и удобно. Представительство в центре столицы — это уникальная возможность находиться в гуще событий: первым узнавать о тенденциях и событиях, выстраивать партнёрские связи с ведущими игроками рынка.

Расположение объекта

Автобусы
№ т18 № 12 № т47 № т3 № 84 № м10 № 84к № 384
В радиусе 2 км находятся:
Кафе и рестораны
79
Тверской бул., 26А, Москва
Трубная площадь, 2, Москва
Страстной бул., 7, стр. 3, Москва
ул. Петровка, 26, стр. 8, Москва
Тверской бул., 26, Москва
Банки
78
Бутырская ул., 4, Москва
ул. Правды, 8, корп. 1, Москва
Долгоруковская ул., 31, стр. 32, Москва
ул. Правды, 26, Москва
Новослободская ул., 57/65, Москва
Фитнес-залы
78
Большая Грузинская ул., 69, Москва
Олимпийский просп., 16, стр. 1, Москва
3-я ул. Ямского Поля, 2, корп. 4, Москва
Страстной бул., 10, корп. 1, Москва
Ленинградский просп., 31А, стр. 1, Москва
Класс A
A
B+
B
C
Офисные помещения, отвечающие самым высоким международным стандартам функциональности, эффективности и комфорта. Как правило, расположены в престижных сформированных деловых районах, управляются профессиональными операторами и имеют развитую собственную или прилегающую инфраструктуру.

Ваши консультанты

Image

Мария Новикова

8 (495) 258-39-91
Image

Дарья Борисова

8 (495) 258-39-91
1
Добавить в Избранное
Удалить из Избранного
Класс здания
Ставка снижена
Моментальная аренда
Проверенная управляющая компания
Фотография
Панорама
Карта
Редактировать название фильтра
Удалить фильтр подбора
Быстрый просмотр
Добавить в сравнение
Перейти в сравнение
^