Лого
Аренда и продажа коммерческой
недвижимости в Москве
B
Аренда
Продажа

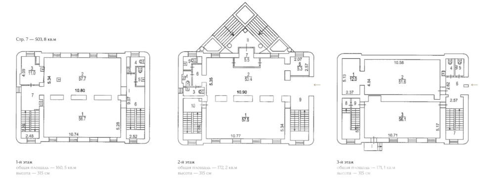
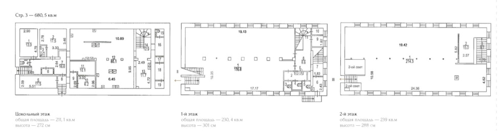
Особняк Садовническая ул., 84, стр. 3, 7

Адрес: Москва, Садовническая улица, 84, стр. 3,7

от 800 000 384 руб.

от 675 676 руб./м2

Доступная площадь: 1184 м²

Коммунальные платежи: Не включены

Есть вопросы?

Аренда 1

Продажа 1

Особняк Садовническая ул., 84, стр. 3, 7 Подробнее
1184 м2
Вместимоcть: 118 чел.
Стоимость по запросу
1 этаж
Свободно офисов в аренду: 1
Особняк Садовническая ул., 84, стр. 3, 7 Подробнее
1184 м2
Вместимоcть: 118 чел.

Цена: 800 000 384 руб.

1 этаж
36
Свободно офисов в аренду: 1

Информация о здании

  • Видеонаблюдение, охрана 24/7
  • Особняк
  • Система контроля доступа
  • Профессиональное управление зданием

Расположение объекта

Автобусы
№ 158
В радиусе 2 км находятся:
Кафе и рестораны
46
Москва, Садовническая набережная, 75
Москва, Летниковская улица, 2
Москва, Пятницкая улица, 25с1Д
Москва, Космодамианская набережная, 52, стр. 6
Москва, 3-й Крутицкий переулок, 11
Банки
53
Москва, Кожевническая улица, 14
Москва, улица Бахрушина, 32, стр. 1
Москва, Дубининская улица, 57, стр. 4
Москва, Валовая улица, 6
Москва, улица Станиславского, 4
Фитнес-залы
46
Москва, Космодамианская набережная, 46/50с1
Москва, улица Земляной Вал, 77
Москва, улица Малая Полянка, 2
Москва, Валовая улица, 26, подъезд 1
Москва, улица Большая Якиманка, 22к3
Класс B
A
B+
B
C
Офисные помещения среднего ценового сегмента, часто расположены в реконструированных зданиях, имеют необходимый перечень характеристик, позволяющий организовать достаточно комфортное рабочее пространство.

Ваши консультанты

Image

Мария Новикова

8 (495) 258-39-91
Image

Дарья Борисова

8 (495) 258-39-91
1
Добавить в Избранное
Удалить из Избранного
Класс здания
Ставка снижена
Моментальная аренда
Проверенная управляющая компания
Фотография
Панорама
Карта
Редактировать название фильтра
Удалить фильтр подбора
Быстрый просмотр
Добавить в сравнение
Перейти в сравнение
^