Лого
Аренда и продажа коммерческой
недвижимости в Москве
B+
Аренда

Бизнес-центр Астория II

Адрес: Химки, Транспортный проезд, 19

от 11 522 958 руб./мес

от 15 500 руб./м2/год

Доступная площадь: 8921 м²

Коммунальные платежи: Не включены

Есть вопросы?

Аренда 1

Бизнес-центр Астория II Подробнее
8921 м2
Вместимоcть: 892 чел.
Цена:

11 522 958 руб./мес

15 500 руб./м2/год

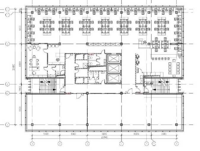
1 этаж
Свободно офисов в аренду: 1

Информация о здании

Описание объекта

Бизнес-центр «Астория II» - многофункциональный комплекс класса B+, предлагающий комфортные условия для ведения бизнеса. Объект спроектирован с учетом актуальных требований к организации рабочего пространства, обеспечивая арендаторов функциональными офисными помещениями. Продуманные планировочные решения позволяют эффективно разместить как небольшие компании, так и крупные корпоративные представительства. Стабильное функционирование всех систем делового центра обеспечивает профессиональная управляющая компания, оперативно решающая технические вопросы.

Характеристики объекта

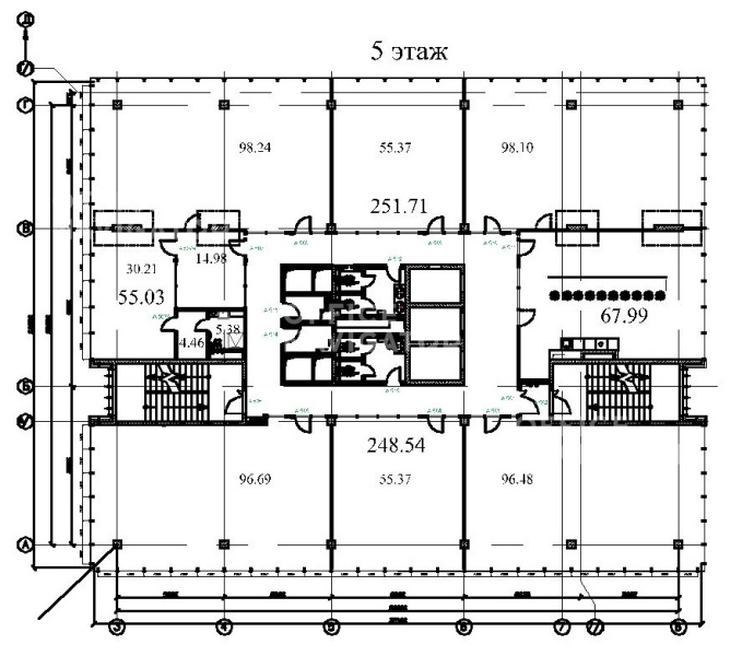
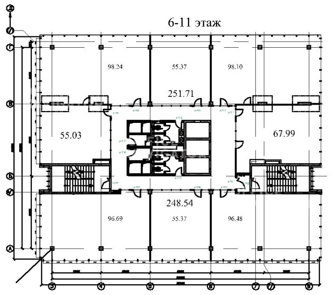
Здание обладает современными инженерными системами, которые создают благоприятный микроклимат для продуктивной работы. Наличие собственной котельной гарантирует бесперебойное теплоснабжение. В офисной части шаг колонн составляет 6x6 метров, что дает свободу при планировании рабочих зон. Допустимая нагрузка на перекрытия не превышает 240 кг/кв.м. Помещения предлагаются в аренду с готовой отделкой, сокращая затраты арендаторов на ремонт. Высокоскоростной доступ в интернет обеспечивается несколькими провайдерами, предоставляя выбор оптимального тарифа.

Инфраструктура

В радиусе двух километров функционируют кафе, рестораны, предлагающие блюда разных кухонь мира. Для сотрудников доступны отделения крупных банков, таких как Альфа-Банк, ВТБ, Кредит Европа банк. Поддерживать физическую форму можно в одном из фитнес-клубов, расположенных неподалеку, включая NeoFit, DDX Fitness, XFit. Такое разнообразие объектов сферы услуг создает комфортную среду для работы, отдыха, решения повседневных задач. Наличие всего необходимого в шаговой доступности экономит время сотрудников.

Локация

Бизнес-центр «Астория II» расположен по адресу: город Химки, Транспортный проезд, 19. Это обеспечивает удобный доступ к основным транспортным артериям, таким как Ленинградское шоссе. Размещение офиса в данной локации позволяет совмещать преимущества загородного спокойствия с динамикой деловой жизни.

Транспорт, метро, парковка

Рядом с бизнес-центром находятся железнодорожные станции Химки, Молжаниново, откуда можно добраться до центра Москвы. Для автовладельцев предусмотрена наземная парковка на территории делового центра. Остановки общественного транспорта расположены в пешей доступности, позволяя легко добраться до ближайших станций метро.

 

Расположение объекта

В радиусе 2 км находятся:
Кафе и рестораны
50
Московская область, Химки, Ленинградское шоссе, 24Б
Московская область, Химки, улица 9 Мая, 21, корп. 3
Московская область, Химки, микрорайон ИКЕА, 1
Московская область, Химки, Вашутинское шоссе, с36
Московская область, Химки, микрорайон ИКЕА, 1
Банки
50
Московская область, Химки, микрорайон ИКЕА, 4
Московская область, Химки, проспект Мельникова, 2Б
Московская область, Химки, Юбилейный проспект, 60А
Московская область, Химки, проспект Мельникова, 2Б
Московская область, Химки, проспект Мельникова, 2Б
Фитнес-залы
49
Московская область, Химки, проспект Мельникова, 27, стр. 1
Московская область, Химки, улица Германа Титова, 10
Московская область, Химки, улица имени К.И. Вороницына, 18, корп. 1
Москва, Соколово-Мещерская улица, 29
Московская область, Химки, Ленинский проспект, 2Б
Класс B+
A
B+
B
C
Офисные помещения, имеющие качественные характеристики, позволяющие организовать комфортное и функциональное рабочее пространство. Как правило, имеют хорошую транспортную доступность, часто управляются профессиональными компаниями.

Ваши консультанты

Image

Мария Новикова

8 (495) 258-39-91
Image

Дарья Борисова

8 (495) 258-39-91
1
Добавить в Избранное
Удалить из Избранного
Класс здания
Ставка снижена
Моментальная аренда
Проверенная управляющая компания
Фотография
Панорама
Карта
Редактировать название фильтра
Удалить фильтр подбора
Быстрый просмотр
Добавить в сравнение
Перейти в сравнение
^