Лого
Аренда и продажа коммерческой
недвижимости в Москве
A

Бизнес-центр Дубининский

Адрес: Москва, Дубининская ул., 39-41

По запросу

Депозит: По договоренности

Коммунальные платежи: Не включены

Есть вопросы?

Похожие предложения по вашему запросу

Информация о здании

Описание объекта
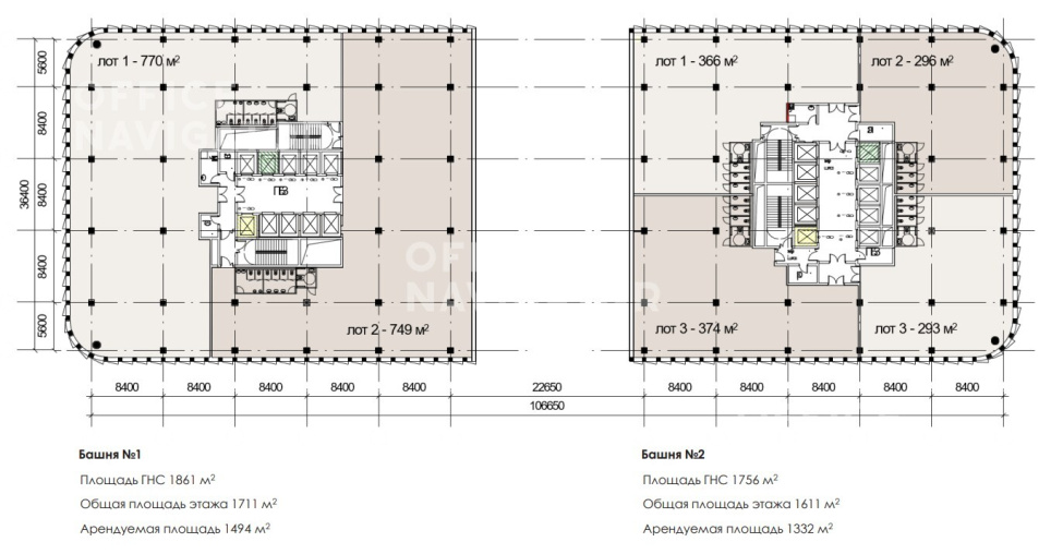
Дубинин Скай – многофункциональный комплекс, состоящий из 2-х башен, объединенных двухэтажной стилобатной частью.
Все части комплекса выполнены в едином архитектурном стиле: один внешний угол здания закруглен, это придает БЦ обтекаемую форму; фасад выполнен из металла и стекла.
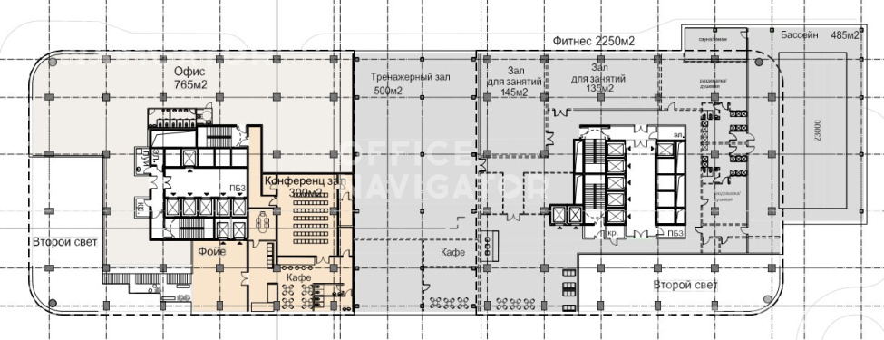
В “Дубинин Скай” преимущественно представлены офисы с открытой планировкой. Главной изюминкой проекта является наличие на 3, 4, 5, 7, 23 этажах открытых террас.

Техническое оснащение
В офисном центре установлены самые современные инженерные коммуникации: системы воздухообмена, приточно-вытяжная вентиляция с функцией рекуперации тепла и кондиционирования.
В здании функционируют интеллектуальные системы управления зданием: контроль доступа в помещение, функция Energy Control Option отключает часть лифтов в отсутствие нагрузки.
Безопасность сотрудников и посетителей находится на высоком уровне: соблюдаются все нормы пожарной безопасности (датчики дыма, сплинкерная система пожаротушения, дымоудаление), на территории комплекса организованы круглосуточная охрана, видеомониторинг, система контроля доступа. 

Инфраструктура
Комфортное времяпрепровождение в комплексе организовано как сотрудникам, так и посетителям.
В стилобатной части находится обширная торговая галерея, на 2-ом этаже откроется собственный фитнес-клуб с бассейном.

Локация
До комплекса без труда можно доехать на автомобиле: в 900 м находится выезд на Садовое кольцо, в 1,5 км пролегают набережные Шлюзовая и Дербеневская. В 800 м от БЦ находятся Павелецкий вокзал и ТРЦ “Павелецкая Плаза”.

Транспорт, метро, парковка
В БЦ “Ферро-Плаза” предусмотрено 2 вида паркинга: наземная гостевая парковка, подземный трехуровневый паркинг на 413 м/м.
Организована специальная зона для стоянки электромобилей с мощными зарядными устройствами.
В пешей доступности расположены остановки общественного транспорта, в 800-900 м находятся станции метро “Павелецкая” и “Серпуховская”.

Отзыв эксперта
офиса в Бизнес-центр Дубининский в ЦАО это престижно и удобно. Представительство в центре столицы — это уникальная возможность находиться в гуще событий: первым узнавать о тенденциях и событиях, выстраивать партнёрские связи с ведущими игроками рынка.

Расположение объекта

Автобусы
№ 3н
В радиусе 2 км находятся:
Кафе и рестораны
48
Москва, Летниковская улица, 2
Москва, Пятницкая улица, 54с2
Москва, улица Шаболовка, 63к1
Москва, Большая Серпуховская улица, 12/11с2
Москва, Садовническая набережная, 75
Банки
47
Москва, Дубининская улица, 57, стр. 4
Москва, Кожевническая улица, 14
Москва, улица Зацепский Вал, 5
Москва, улица Бахрушина, 32, стр. 1
Москва, Валовая улица, 6
Фитнес-залы
51
Москва, Житная улица, 14, стр. 2
Москва, улица Малая Полянка, 2
Москва, Партийный переулок, 1к57с3
Москва, улица Большая Якиманка, 22к3
Москва, Летниковская улица, 10, стр. 5
Класс A
A
B+
B
C
Офисные помещения, отвечающие самым высоким международным стандартам функциональности, эффективности и комфорта. Как правило, расположены в престижных сформированных деловых районах, управляются профессиональными операторами и имеют развитую собственную или прилегающую инфраструктуру.

Ваши консультанты

Image

Элина Степная

8 (495) 258-39-91
Image

Мария Новикова

8 (495) 258-39-91
1
Добавить в Избранное
Удалить из Избранного
Класс здания
Ставка снижена
Моментальная аренда
Проверенная управляющая компания
Фотография
Панорама
Карта
Редактировать название фильтра
Удалить фильтр подбора
Быстрый просмотр
Добавить в сравнение
Перейти в сравнение
^