Лого
Аренда и продажа коммерческой
недвижимости в Москве

от 1 139 979 руб./мес

от 39 085 руб./м2/год

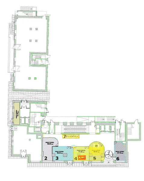
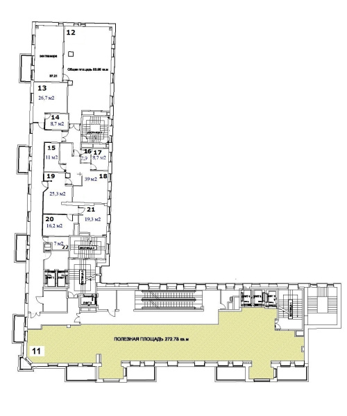
Доступная площадь: 350 м²

Депозит: По договоренности

Коммунальные платежи: Не включены

Есть вопросы?

Аренда 1

Бизнес-центр Garden Mir Подробнее
350 м2
Вместимоcть: 35 чел.
Цена:

1 139 979 руб./мес

39 085 руб./м2/год

5 этаж
Свободно офисов в аренду: 1

Информация о здании

Об объекте
Современный комплекс Garden Mir включает в себя 9 этажей.
В нем сдаются в аренду офисные помещения класса B.
Эффективная планировка этажей позволяет адаптировать пространство под нужды бизнеса, а также размещать в помещениях больше рабочих мест, не жертвуя комфортом сотрудников.
Техническое оснащение
В Garden Mir установлено современное техническое оснащение: в здании функционируют эскалаторы, отдельный лифт идет на 8-й этаж, современные инженерные системы, система вентиляции и кондиционирования воздуха, профессиональные управление зданием.
Инфраструктура
Рядом с объектом находятся: аптека, кофейня, магазин.
Мещанский район отличается развитой инфраструктурой, где есть все необходимое для нужд жителей и бизнеса. Все важные социальные объекты находятся в шаговой доступности, что позволяет экономить время на перемещениях.
Парковка
Для личных автомобилей предусмотрена городская парковка.
Метро и транспорт
Рядом с деловым центром Garden Mir находится несколько станций метро: «Проспект Мира» меньше минуты ходьбы. Около 12 минут потребуется, чтобы дойти до станции «Сухаревская». На метро можно без пересадок добраться в самые значимые точки столицы.
Неподалеку от комплекса расположены остановки наземного транспорта.
Развитая дорожная сеть позволяет добираться до бизнес-центра в любое время. В часы высокой загруженности дорог можно найти альтернативный маршрут или воспользоваться подземкой.

Отзыв эксперта
Аренда офиса в Бизнес-центр Garden Mir в ЦАО это престижно и удобно. Представительство в центре столицы — это уникальная возможность находиться в гуще событий: первым узнавать о тенденциях и событиях, выстраивать партнёрские связи с ведущими игроками рынка.

Расположение объекта

Автобусы
№ М9 (Т9) № 379
В радиусе 2 км находятся:
Кафе и рестораны
54
Москва, проспект Мира, 26, стр. 7
Москва, Трифоновская улица, 24с1
Москва, проспект Мира, 26, стр. 1
Москва, Рождественский бульвар, 1
Москва, Тверской бульвар, 26А
Банки
53
Москва, проспект Мира, 42
Москва, проспект Мира, 41, стр. 2
Москва, улица Щепкина, 29
Москва, проспект Мира, 72
Москва, Цветной бульвар, 32, стр. 1
Фитнес-залы
52
Москва, улица Сущёвский Вал, вл56
Москва, улица Гиляровского, 39, стр. 1
Москва, Шереметьевская улица, 6к1
Москва, Мясницкая улица, 35
Москва, Каланчёвская улица, 16с1
Класс B+
A
B+
B
C
Офисные помещения, имеющие качественные характеристики, позволяющие организовать комфортное и функциональное рабочее пространство. Как правило, имеют хорошую транспортную доступность, часто управляются профессиональными компаниями.

Ваши консультанты

Image

Дарья Борисова

8 (495) 258-39-91
Image

Элина Степная

8 (495) 258-39-91

Подпишитесь на нас в соц. сетях

1
Добавить в Избранное
Удалить из Избранного
Класс здания
Ставка снижена
Моментальная аренда
Проверенная управляющая компания
Фотография
Панорама
Карта
Редактировать название фильтра
Удалить фильтр подбора
Быстрый просмотр
Добавить в сравнение
Перейти в сравнение
^