Лого
Аренда и продажа коммерческой
недвижимости в Москве
B

Особняк Напрудный пер., 10, стр. 1

Адрес: Москва, Напрудный пер, 10, стр. 1

По запросу

Коммунальные платежи: Не включены

Есть вопросы?

Похожие предложения по вашему запросу

Информация о здании

Об объекте
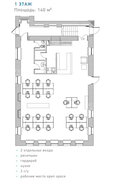
Современный комплекс Напрудный пер.,10, стр.1 включает в себя 3 этажа.

Техническое оснащение
В здании Напрудный пер.,10, стр.1 установлено современное техническое оснащение: системы вентиляции и кондиционирования воздуха, современные инженерные системы, ИТ-инфраструктура, сетевой дата-центр, круглосуточная охрана, контроль доступа и видеонаблюдение.

Инфраструктура
Мещанский район отличается развитой инфраструктурой, где есть все необходимое для нужд жителей и бизнеса. Все важные социальные объекты находятся в шаговой доступности, что позволяет экономить время на перемещениях.

Метро и транспорт
Рядом с деловым центром Напрудный пер.,10, стр.1 находится несколько станций метро: «Рижская» в 9 минутах ходьбы. Около 12 минут потребуется, чтобы дойти до станции «Проспект Мира». На метро можно без пересадок добраться в самые значимые точки столицы.
Неподалеку от комплекса расположены остановки наземного транспорта.
Развитая дорожная сеть позволяет добираться до бизнес-центра в любое время. В часы высокой загруженности дорог можно найти альтернативный маршрут или воспользоваться подземкой.

Отзыв эксперта
Особняк в центре столицы - это имиджевая недвижимость, показатель высочайшего статуса компании. Офисные особняки в ЦАО представлены новыми зданиями или полностью реконструированными историческими постройками. представительского офиса в особняке Особняк Напрудный пер., 10, стр. 1 — выбор предпринимателей, которые ценят новейшее техническое оснащение, удобную планировку, качественную отделку.

Расположение объекта

В радиусе 2 км находятся:
Кафе и рестораны
45
Москва, проспект Мира, 74с1
Москва, улица Гиляровского, 39, стр. 3
Москва, проспект Мира, 54
Москва, проспект Мира, 36, стр. 1
Москва, Лесная улица, 7
Банки
52
Москва, Банный переулок, 3
Москва, проспект Мира, 76
Москва, улица Гиляровского, 39, стр. 3
Москва, проспект Мира, 72
Москва, проспект Мира, 46
Фитнес-залы
50
Москва, улица Гиляровского, 39с1
Москва, улица Сущёвский Вал, вл56
Москва, Шереметьевская улица, 6к1
Москва, 12-й проезд Марьиной Рощи, 9, стр. 2
Москва, Каланчёвская улица, 16с1
Класс B
A
B+
B
C
Офисные помещения среднего ценового сегмента, часто расположены в реконструированных зданиях, имеют необходимый перечень характеристик, позволяющий организовать достаточно комфортное рабочее пространство.

Ваши консультанты

Image

Дарья Борисова

8 (495) 258-39-91
Image

Элина Степная

8 (495) 258-39-91

Подпишитесь на нас в соц. сетях

1
Добавить в Избранное
Удалить из Избранного
Класс здания
Ставка снижена
Моментальная аренда
Проверенная управляющая компания
Фотография
Панорама
Карта
Редактировать название фильтра
Удалить фильтр подбора
Быстрый просмотр
Добавить в сравнение
Перейти в сравнение
^