Лого
Аренда и продажа коммерческой
недвижимости в Москве
C
Аренда

Бизнес-центр Рассвет 3.5, 3.9, 3.15, 3.17

Адрес: Москва, Столярный переулок, 3, стр. 5, 9, 15, 17

от 2 312 463 руб./мес

от 49 999 руб./м2/год

Доступная площадь: 555 м²

Депозит: По договоренности

Коммунальные платежи: Не включены

Есть вопросы?

Аренда 1

Бизнес-центр Рассвет 3.5, 3.9, 3.15, 3.17 Подробнее
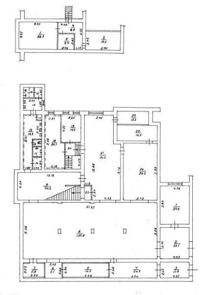
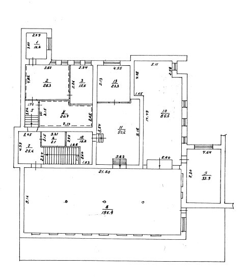
555 м2
Вместимоcть: 56 чел.
Цена:

2 312 463 руб./мес

49 999 руб./м2/год

2 этаж
Свободно офисов в аренду: 1

Информация о здании

Об объекте

Бизнес-парк Рассвет включает в себя комплекс из нескольких строений разной этажности

Высота потолков - более 5,5 м.

Техническое оснащение

В здании Бизнес-парка Рассвет установлено современное техническое оснащение:

центральная диспетчерская, современная система вентиляции и кондиционирования,

оптико-волокно, коллекторно-лучевая система отопления, обеспечение безопасности, КПП, видеонаблюдение 24/7.

Инфраструктура

Рядом с объектом находятся: ресторан, кофейня, магазин, банк, аптека, салон красоты

Пресненский район отличается развитой инфраструктурой, где есть все необходимое для нужд жителей и бизнеса. Все важные социальные объекты находятся в шаговой доступности, что позволяет экономить время на перемещениях.

Собственная инфраструктура центра включает в себя: кафе, магазины, где сотрудники смогут пообедать или приобрести товары первой необходимости.

Парковка

Для личных автомобилей предусмотрена наземный паркинг для 100+ машино-мест,

подземный паркинг.

Метро и транспорт

Рядом с деловым центром Рассвет находится несколько станций метро: «Улица 1905 года» в 8 минутах ходьбы. Около 10 минут потребуется, чтобы дойти до станции «Краснопресненская». На метро можно без пересадок добраться в самые значимые точки столицы.

Неподалеку от комплекса расположены остановки наземного транспорта.

Развитая дорожная сеть позволяет добираться до бизнес-центра в любое время. В часы высокой загруженности дорог можно найти альтернативный маршрут или воспользоваться подземкой.

Отзыв эксперта
Аренда офиса в Бизнес-центр Рассвет 3.5, 3.9, 3.15, 3.17 в ЦАО это престижно и удобно. Представительство в центре столицы — это уникальная возможность находиться в гуще событий: первым узнавать о тенденциях и событиях, выстраивать партнёрские связи с ведущими игроками рынка.

Расположение объекта

Троллейбусы
№ 1 № 2
Автобусы
№ М6 № Т79 № 12 № 18 № 34 № 35 № 54 № 64 № 69 № 850
В радиусе 2 км находятся:
Кафе и рестораны
54
Москва, улица Красная Пресня, 13
Москва, Дружинниковская улица, 30с1
Москва, Тверской бульвар, 26А
Москва, Новинский бульвар, 31
Москва, улица 1905 года, 2
Банки
55
Москва, улица Красная Пресня, 22
Москва, Хорошёвское шоссе, 32А
Москва, улица Красная Пресня, 23, корп. Б, стр. 1
Москва, улица Пресненский Вал, 7, стр. 1
Москва, улица Красная Пресня, 11
Фитнес-залы
52
Москва, улица Климашкина, 17, стр. 2
Москва, Ленинградский проспект, 31А, стр. 1
Москва, 3-я улица Ямского Поля, 2к4
Москва, Большая Декабрьская улица, 13
Москва, Пресненская набережная, 12
Класс C
A
B+
B
C
Функциональное и доступное решение для бизнеса. Здания такого класса обеспечивают базовые условия для работы. Это экономичный вариант для небольших компаний или стартапов.

Ваши консультанты

Image

Элина Степная

8 (495) 258-39-91
Image

Мария Новикова

8 (495) 258-39-91

Подпишитесь на нас в соц. сетях

1
Добавить в Избранное
Удалить из Избранного
Класс здания
Ставка снижена
Моментальная аренда
Проверенная управляющая компания
Фотография
Панорама
Карта
Редактировать название фильтра
Удалить фильтр подбора
Быстрый просмотр
Добавить в сравнение
Перейти в сравнение
^